
solgt



solgt
Vestergaardsvej 25, 9293 Kongerslev
LYNSALG PÅ KUN 15 DAGE - LIGNENDE BOLIG SØGES TIL KØBERE I MIT KØBERKARTOTEK
Højt placeret villa i renoveret topform og med flot udsigt
Villaen her ligger højt placeret på en lettere skrånende grund og har den dejligste udsigt hen over
Kongerslevs tage og ud til de grønne omgivelser, som omkranser byen. De skønne ydre rammer
matches til fulde af selve boligen. Ejendommen er nemlig blevet renoveret løbende, og det giver dig
mulighed for at overtage nøglerne til en skøn bolig, der byder på masser af velindrettet, familievenlig
plads, og som samtidig er lige til at flytte ind i.
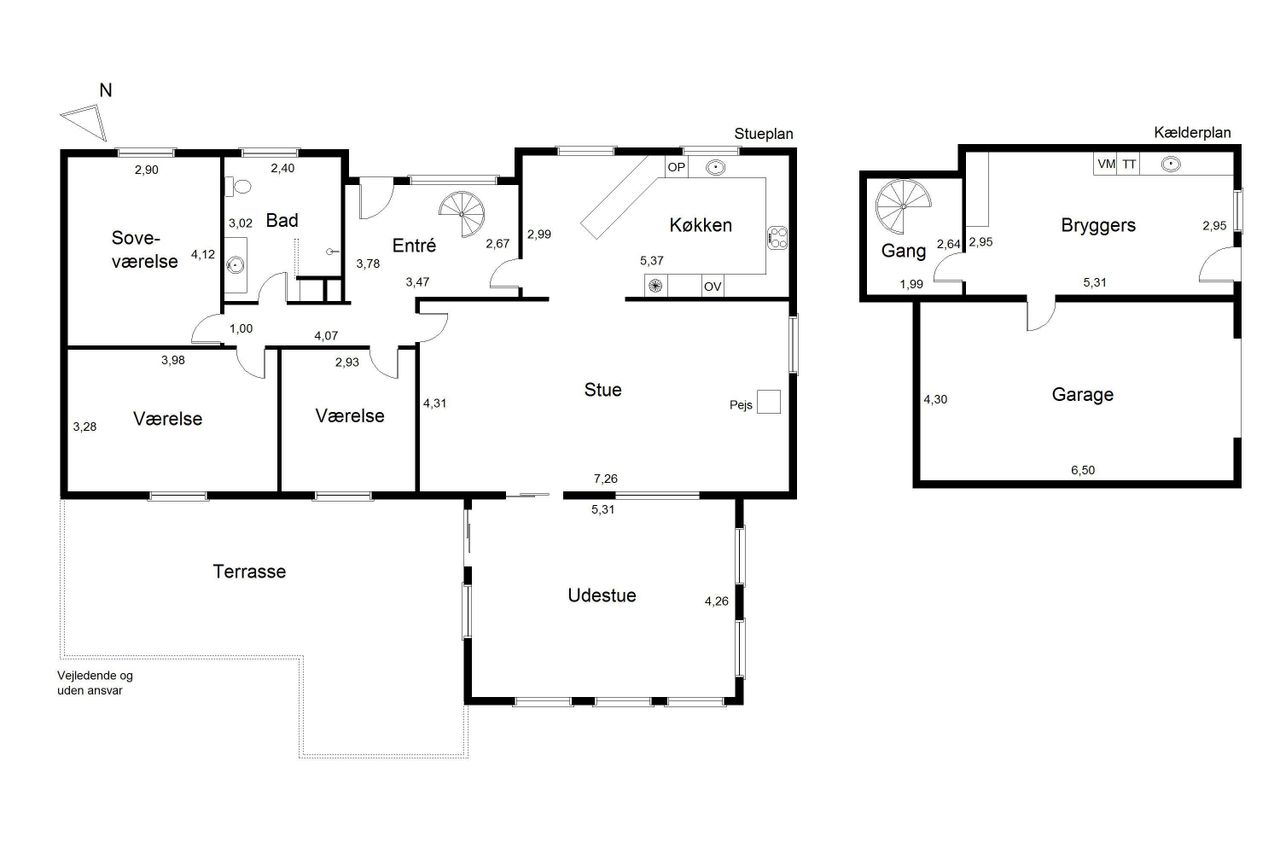
Stueplanet giver dig et indbydende opholdsafsnit, hvor spisekøkken, stue og udestue ligger i et åbent
rumforløb. I stuen er der en indbygget pejs med aflukkelig pejseindsats, og fra udestuen er der videre
udgang til den største af terrasserne i den frodige have. I husets værelsesafdeling er der tre værelser og
et brusebadeværelse, og endelig er der i den velanvendelige kælder både en fin, integreret garage og et
stort bryggers (med muligheder for evt. udnyttelse til beboelse) med såvel vaske- som
opbevaringsfaciliteter.
En spændende villa med masser af muligheder for førstegangskøberen og børnefamilien.
Kongerslev ligger 25 km sydøst for Aalborg og 15 km sydøst for Aalborg Universitet og nye planlagte
Aalborg Universitetshospital. Til Hadsund og Mariager Fjord mod syd er afstanden 23 km. Der er en god
folkeskole til og med 9. klasse og et aktivt foreningsliv og idrætsklub i byen samt dagligvare/butikker samt
erhvervsvirksomheder. Kongerslev Naturpark (ved skolen) er et grønt område i byen, her er skaterbane,
løbe- og mountainbikerute samt bålhytter og shelters. Byen er beliggende i stærkt kuperet terræn omgivet
af adskillige bakker. Syd for byen ligger Kongerslev Hede der er et attraktiv natur- og bakkeområde på ca.
17 hektarer med seks gravhøje placeret rundt omkring i landskabet, og yndet udflugtsmål. Ca. 5 kilometer
øst for byen strækker Danmarks største Højmose, den 55 km2 store Lille Vildmose sig langs Kattegat,
med bl.a. besøgscentret Lille Vildmosecentret, Mulbjergene og med masser af flot natur og rigt dyreliv for
naturelskere. Kun 10-15 minutter til offentlig strand og Kattegat ved Dokkedal og Øster Hurup.
Kontakt mig for en fremvisning på tlf. 6115 1513
Coronavirussen skal tages alvorligt, og jeg følger myndighedernes anvisninger, og for at minimere
risikoen for smitte med coronavirus har jeg valgt at tage nye metoder i brug:
- Åbent hus arrangementer foregår nu som 1 - 1 fremvisninger, hvor man tilmelder sig 1 hold af gangen
- Jeg har håndsprit med til alle fremvisninger og åbne huse
- Jeg undlader at give hånd og holder god afstand
- Jeg er klar til at hjælpe både på telefon, mail, og videomøder / facetime
Højt placeret villa i renoveret topform og med flot udsigt
Villaen her ligger højt placeret på en lettere skrånende grund og har den dejligste udsigt hen over
Kongerslevs tage og ud til de grønne omgivelser, som omkranser byen. De skønne ydre rammer
matches til fulde af selve boligen. Ejendommen er nemlig blevet renoveret løbende, og det giver dig
mulighed for at overtage nøglerne til en skøn bolig, der byder på masser af velindrettet, familievenlig
plads, og som samtidig er lige til at flytte ind i.
Stueplanet giver dig et indbydende opholdsafsnit, hvor spisekøkken, stue og udestue ligger i et åbent
rumforløb. I stuen er der en indbygget pejs med aflukkelig pejseindsats, og fra udestuen er der videre
udgang til den største af terrasserne i den frodige have. I husets værelsesafdeling er der tre værelser og
et brusebadeværelse, og endelig er der i den velanvendelige kælder både en fin, integreret garage og et
stort bryggers (med muligheder for evt. udnyttelse til beboelse) med såvel vaske- som
opbevaringsfaciliteter.
En spændende villa med masser af muligheder for førstegangskøberen og børnefamilien.
Kongerslev ligger 25 km sydøst for Aalborg og 15 km sydøst for Aalborg Universitet og nye planlagte
Aalborg Universitetshospital. Til Hadsund og Mariager Fjord mod syd er afstanden 23 km. Der er en god
folkeskole til og med 9. klasse og et aktivt foreningsliv og idrætsklub i byen samt dagligvare/butikker samt
erhvervsvirksomheder. Kongerslev Naturpark (ved skolen) er et grønt område i byen, her er skaterbane,
løbe- og mountainbikerute samt bålhytter og shelters. Byen er beliggende i stærkt kuperet terræn omgivet
af adskillige bakker. Syd for byen ligger Kongerslev Hede der er et attraktiv natur- og bakkeområde på ca.
17 hektarer med seks gravhøje placeret rundt omkring i landskabet, og yndet udflugtsmål. Ca. 5 kilometer
øst for byen strækker Danmarks største Højmose, den 55 km2 store Lille Vildmose sig langs Kattegat,
med bl.a. besøgscentret Lille Vildmosecentret, Mulbjergene og med masser af flot natur og rigt dyreliv for
naturelskere. Kun 10-15 minutter til offentlig strand og Kattegat ved Dokkedal og Øster Hurup.
Kontakt mig for en fremvisning på tlf. 6115 1513
Coronavirussen skal tages alvorligt, og jeg følger myndighedernes anvisninger, og for at minimere
risikoen for smitte med coronavirus har jeg valgt at tage nye metoder i brug:
- Åbent hus arrangementer foregår nu som 1 - 1 fremvisninger, hvor man tilmelder sig 1 hold af gangen
- Jeg har håndsprit med til alle fremvisninger og åbne huse
- Jeg undlader at give hånd og holder god afstand
- Jeg er klar til at hjælpe både på telefon, mail, og videomøder / facetime
Torben Svendsen
Ejendomsmægler, MDE og Indehaver
Skriv dig op i mit køberkartotek
Så finder vi sammen den rigtige vej til dit nye hjem.



